1
1
1 TORRE | 10 ANDARES
2 ELEVADORES
PLANTAS
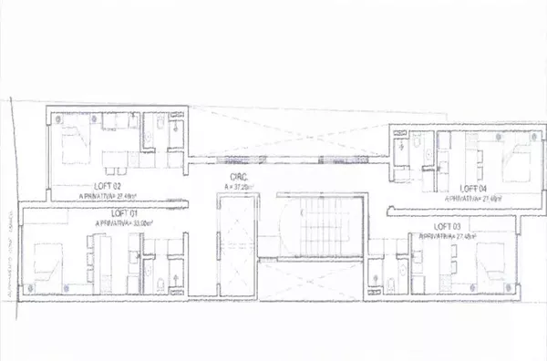
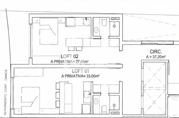
STÚDIO | 28 m² | SEM VAGA
1 QUARTO | 56 m² (*) | SEM VAGA
(*) 2 unidades unificadas
ANO ENTREGA: SET/26
Ideal para quem quer investir para rendimento com aluguel (curta e longa temporada), para estudantes e para profissionais ou colaboradores do hospital Santa Casa ou pessoas que necessitem passar um tempo em tratamento de saúde. Quem busca combinar o conforto do dia a dia com um pouco da agitação da vida noturna. Para estudantes, professores e colaboradores da UFRGS, Santa Casa e quem deseja morar com praticidade em um apartamento fácil de manter.
INFRAESTRUTURA
Acesso para embarque e desembarque no portal de entrada do prédio (porte-cochére).
Espaço coworking
Lavanderia compartilhada
Bicicletário
Salão de festas com pátio de 40 m²
Localizado no Centro Histórico, próximo ao Colégio Sevignhe e ao campus centro da UFRGS, imediações com a Santa Casa. Usina do Gasômetro e Rua Riachuelo, próximo da Orla do Guaíba (recentemente revitalizada), Praça da Matriz, Justiça Federal, ao Centro Administrativo e Colégio Estadual Paula Soares. Possui farmácias, mercado, cafés e muitas outras comodidades a alguns passos.
Para informações adicionais sobre o imóvel ou agendar uma visita, ligue ou envie mensagem, via WhatsApp Nº + 55 (51) 99636-6630
Nota 1: A disponibilidade e valores dos imóveis podem sofrer alterações sem aviso prévio.
Nota 2: O valor do IPTU pode variar mediante alterações municipais
| Tipo | Disponíveis | Valor venda | Valor do condomínio | Valor do IPTU | Andar | Área útil | Área total | Área terreno | Quartos | Salas | Suítes | Banheiros | Vagas |
|---|---|---|---|---|---|---|---|---|---|---|---|---|---|
| Loft | * CONSULTE | R$ 215.000,00 | * | R$ 100,00 | * | * | * | * | 1 | * | * | 1 | * |